29 Parkhill Road, Kew

At just 10 meters wide and 100 meters deep, with a semi-detached Victorian at the front, the Parkhill Road site presented a challenge. The previous owners of the block planned to build 3 new townhouses in the back yard but a visit to VCAT saw the plans reduced to just 2 homes. They decided to sell.

BBB were the only bidders at auction, in part perhaps, because the development of the two proposed homes was not financially viable. So, BBB’s designer, Kerry Bell, and Architect, Caroline Vernon, went back to Boroondara City Council with a plan to upgrade the proposed properties. Building materials were changed, spaces extended and north-facing windows enlarged.

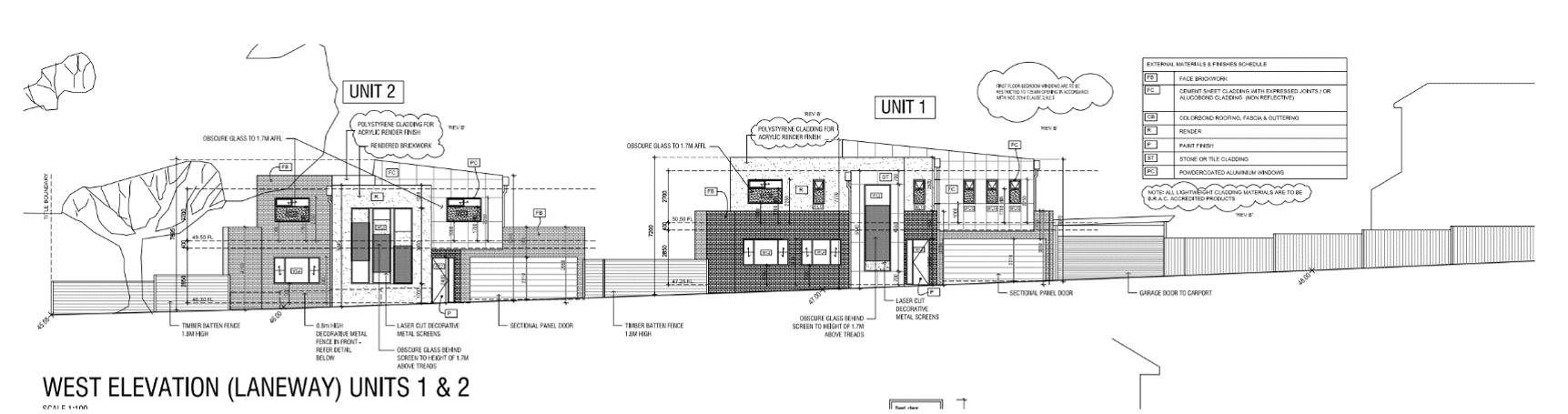
Brown Bell Build Property Draft

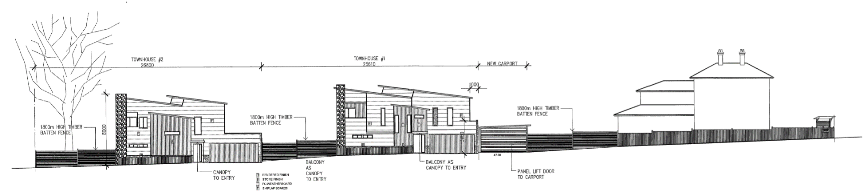
The original plans above and the new version below.

Brown Bell Build Parkhill Road Architectural Drawing
Brown Bell Build Melbourne Finished Building Project showing the completed townhouses

The completed project.

Brown Bell Build - Interior Shot of kitchen and living space

Although similar in style, the two homes have quite different interiors. However, both include 2.7-metre ceilings, Royal Oak floors and north-facing decks.  

brown Bell Build Alternate kitchen rendering